Description

IN VERBAND MET DE GESTELDE DEADLINE PLANNEN WIJ GEEN NIEUWE AFSPRAKEN MEER IN.

DE WONING WORDT VERKOCHT MET VOORRANG VOOR SOCIALE HUURDERS, INFORMEER NAAR DE VOORWAARDEN.

#YMEREVERKOOPT

In de rustige Reinwardtstraat, midden in het geliefde Amsterdam-Oost, wacht deze royale maisonnette van ca. 92 m², verdeeld over twee woonlagen. Een licht en ruim thuis met een heldere indeling, ideaal voor wie een woning volledig naar eigen smaak wil maken op een fantastische locatie.

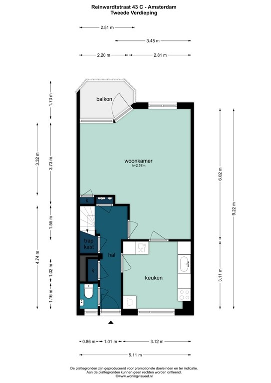
Achter de karakteristieke gevel bevindt zich op de tweede verdieping de riante woonkamer. De grote ramen vangen volop daglicht en geven de ruimte een open, uitnodigende sfeer. Vanuit de woonkamer is er toegang tot het balkon, een fijne plek voor een kop koffie in de ochtendzon.

Aan de achterzijde ligt de keuken, voorzien van een eenvoudig keukenblok en klaar voor een eigentijdse upgrade. Op deze verdieping bevinden zich daarnaast de hal, een separaat toilet en een praktische trapkast.

Via de interne trap bereikt u de bovenverdieping. Hier treft u drie goed bemeten slaapkamers, elk met een eigen indeling en prettige lichtinval. De badkamer is nog niet ingericht, waardoor u deze geheel naar eigen wens kunt ontwerpen.

Daarnaast beschikt het appartement over een eigen berging in het souterrain van het complex. Via de gezamenlijke entree bereikt u deze ruime en praktische opbergruimte, ideaal voor fietsen, seizoensspullen of extra opslag.

De omgeving
De Reinwardtstraat ligt in het populaire stadsdeel Amsterdam-Oost, nabij de Javastraat, het Flevopark en de Dappermarkt. In de directe omgeving vindt u een divers aanbod van winkels, cafés, restaurants en sportvoorzieningen.

Bereikbaarheid
Het appartement is uitstekend bereikbaar met zowel de auto als het openbaar vervoer. De Ring A10, A1 en A2 zijn eenvoudig bereikbaar. Met de tramlijnen 1, 3, 14 en 19 bent u verbonden met alle delen van de stad. Ook de metro is dichtbij, waardoor Amsterdam Centraal binnen slechts 5 minuten bereikbaar is. Daarnaast liggen de NS-stations Amstel, Muiderpoort en Science Park op korte afstand. Voor fietsers is het centrum binnen 10 minuten bereikbaar. Kortom, een woning met uitstekende bereikbaarheid op een geliefde locatie.

Details

- Servicekosten €  315,32 per maand.
- Erfpacht afgekocht tot en met 15-04-2031
- Energielabel B
- Verkoper is een woningbouwvereniging. In de Koopovereenkomst zal onder meer een ouderdomsclausule, een speculatiebeding en verplichting tot zelfbewoning (koper, ouders of kinderen) worden opgenomen. Voorrangregeling voor sociale huurders is van toepassing, informeer naar de voorwaarden.
- Oplevering kan op korte termijn
- Levering via projectnotaris Lubbers & Dijk

Features