| Prijs | € 425.000,- k.k. |
| Type object | Appartement, portiekwoning |
| Woonoppervlakte | 65 m² |
| Aanvaarding | In overleg |
| Status | Verkocht onder voorbehoud |
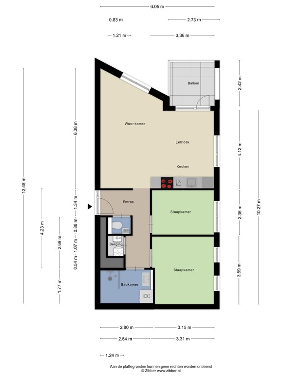
Comfortabel wonen in een modern gebouw, met een weids uitzicht en een eigen parkeerplaats. ** English below** Wat mogen wij u aanbieden? Een efficiënt ingedeeld en goed onderhouden, licht drie kamer hoekappartement van circa 65 m² met een heerlijk balkon en een eigen parkeerplaats. Gelegen op een mooie locatie aan de rand van de Westwijk. Het is hier prettig wonen, rustig maar centraal en toch alle voorzieningen op korte afstand. Indeling Via de gemeenschappelijke entree op de begane grond bereikt u met de lift of de trap de woning op de tweede verdieping. Entree met hal, meterkast en toegang tot alle vertrekken. Op “de kop” van het gebouw bevindt zich de woonkamer met open keuken en het fijne balkon. Het balkon is op het zuid-westen gelegen. De hoek-ligging zorgt voor veel licht in de woonkamer. Aan de rustige achterzijde liggen de twee slaapkamers en tot slot is er nog de badkamer en het toilet. De gehele woning is voorzien van vloerverwarming. De bijbehorende parkeerplaats en gemeenschappelijke fietsenberging liggen op de begane grond. Locatie en bereikbaarheid De woning ligt in de Westwijk, ruim opgezet met veel openbaar groen. Voor de dagelijkse boodschappen is winkelcentrum Westwijkplein op korte afstand gelegen. Ook het gezellige Oude Dorp en het Stadshart Amstelveen liggen vlakbij, waar u terecht kunt voor winkels, horeca en culturele voorzieningen. Sportfaciliteiten, recreatiemogelijkheden en scholen zijn eveneens volop aanwezig in de omgeving. Ook qua bereikbaarheid is de ligging ideaal en uitstekend bereikbaar met zowel eigen- als het openbaar vervoer. Onder meer de A-9, A-4, A-2 en N201 zijn eenvoudig en snel bereikbaar. Met de vernieuwde tramlijn zit u binnen no time in Amsterdam en verder zijn er diverse buslijnen in de omgeving. De foto´s geven uiteraard een goed beeld van de woning weer, maar om echt een indruk van deze woning te krijgen zijn wij van mening dat u het beste kunt komen kijken. Nieuwsgierig of meer informatie? Maak snel een afspraak, wij leiden u met plezier rond en informeren u graag. ** Comfortable living in a modern building, with panoramic views and private parking. What can we offer you? An efficiently laid out and well-maintained, bright three-room corner flat of approximately 65 m² with a lovely balcony and private parking. Located in a beautiful location on the edge of the Westwijk. It is a pleasant place to live, quiet but central and yet with all amenities within easy reach. Layout Through the communal entrance on the ground floor, you can reach the flat on the second floor by lift or stairs. Entrance hall with meter cupboard and access to all rooms. At the front of the building is the living room with open kitchen and the lovely balcony. The balcony faces south-west. The corner location provides plenty of light in the living room. At the quiet rear are the two bedrooms and finally there is the bathroom and toilet. The entire property has underfloor heating. The associated parking space and communal bicycle storage are located on the ground floor. Location and accessibility The property is located in the Westwijk neighbourhood, which is spacious with lots of public green spaces. The Westwijkplein shopping centre is a short distance away for your daily shopping needs. The charming Oude Dorp and Stadshart Amstelveen are also nearby, where you will find shops, restaurants and cultural amenities. Sports facilities, recreational opportunities and schools are also plentiful in the area. The location is also ideal in terms of accessibility and is easily accessible by both private and public transport. The A-9, A-4, A-2 and N201 motorways, among others, are easily and quickly accessible. With the renovated tram line, you can be in Amsterdam in no time, and there are also several bus lines in the area. The photographs naturally give a good impression of the property, but to really get a feel for it, we believe it is best to come and see it for yourself. Curious or want more information? Make an appointment quickly, we will be happy to show you around and provide you with further details.
| Referentienummer | 06641 |
| Vraagprijs | € 425.000,- k.k. |
| Servicekosten | € 168,86 |
| Verwarming | € 157,- |
| Water | € 11,67 |
| Inrichting | Ja |
| Inrichting | Gestoffeerd |
| Status | Verkocht onder voorbehoud |
| Aanvaarding | In overleg |
| Aangeboden sinds | Dinsdag 11 november 2025 |
| Laatste wijziging | Donderdag 18 december 2025 |
| Type object | Appartement, portiekwoning |
| Woonlaag | 3e woonlaag |
| Soort bouw | Bestaande bouw |
| Toegankelijkheid | Mindervaliden Senioren |
| Bouwperiode | 2011 |
| Dakbedekking | Bitumen |
| Type dak | Platdak |
| Isolatievormen | Dubbel glas HR-glas Volledig geïsoleerd |
| Woonoppervlakte | 65 m² |
| Inhoud | 214 m³ |
| Oppervlakte gebouwgebonden buitenruimte | 6 m² |
| Balkonoppervlakte | 6,61 m² |
| Aantal bouwlagen | 1 |
| Aantal kamers | 3 (waarvan 2 slaapkamers) |
| Aantal badkamers | 1 (en 1 apart toilet) |
| Ligging | Aan rustige weg Dichtbij openbaar vervoer Nabij school Nabij snelweg Nabij winkelcentrum Open ligging Vrij uitzicht |
| Energielabel | A+ |
| Aantal parkeerplaatsen | 1 |
| Aantal overdekte parkeerplaatsen | 1 |
| Warm water | Centrale voorziening |
| Verwarmingssysteem | Vloerverwarming Water verwarming |
| Ventilatie methode | Mechanische ventilatie |
| Badkamervoorzieningen | Douche Wasmachineaansluiting Wastafel Wastafelmeubel |
| Parkeergelegenheid | Parkeerplaats |
| Heeft een balkon | Ja |
| Heeft een lift | Ja |
| Heeft ventilatie | Ja |
| Ingeschreven bij de KvK | Ja |
| Jaarlijkse vergadering | Ja |
| Periodieke bijdrage | Ja |
| Reservefonds | Ja |
| Meer jaren onderhoudsplan | Ja |
| Opstal verzekering | Ja |
| Kadastrale aanduiding | Amstelveen O 8281 |
| Omvang | Appartementsrecht of complex |
| Eigendomsituatie | Eigen grond |
| Kadastrale aanduiding | Amstelveen O 8281 |
| Omvang | Appartementsrecht of complex |
| Eigendomsituatie | Eigen grond |