Beschrijving
In één woord heerlijk! Wat is dit een fijne woning. Licht, rust, ruimte, een goede sfeer en perfect gelegen in één van de mooiste straten van de Watergraafsmeer. Wat wilt u nog meer? ** English below**
Wat mogen wij u aanbieden. Achter deze ruim 7 meter brede indrukwekkende gevel in deze prachtige en karakteristieke straat bevindt zich dit royale, goed onderhouden dubbel bovenhuis van circa 155 m² gelegen in het “hart” van de Watergraafsmeer. De woning is verdeeld over de tweede en derde verdieping, met een eigen entree op de begane grond. Zoals het vaak gaat op mooie plekjes, eigenaren blijven er lang wonen, om welke reden woningen als deze niet vaak te koop komen. “Liefhebbers” weten het, de huizen aan deze zijde van de Bredeweg liggen qua zon uitstekend en hebben aan de achterzijde een verrassend vrij uitzicht.
Indeling
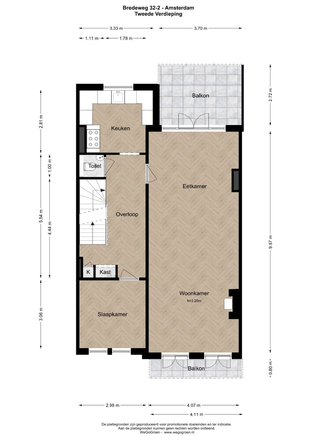
Entree van de woning via de eigen straat/toegangsdeur op de begane grond en ruime trap. 2e verdieping; Hal, toilet, keuken, slaap of werkkamer en woon- eetkamer met aangrenzend het terras. Zowel hier als op de bovengelegen verdieping voelt u de uitzonderlijke breedte van de woning.
3e verdieping; Twee royale slaapkamers, de badkamer, toilet, een wasruimte annex berging en een balkon bereikbaar uit een van de slaapkamers.
Via een vaste trap is de 4e verdieping bereikbaar. In de splitsingsakte is voorzien in de aanleg van een dakterras. De huidige eigenaren hebben hier echter nooit behoefte aan gehad.
Optioneel is er nog een nabijgelegen opslagruimte beschikbaar.
U heeft ongetwijfeld iets meegekregen over de discussie rond erfpacht en de daarbij behorende canon. Daar hoeft u zich in dit geval geen zorgen over te maken, de woning is namelijk op eigen grond gelegen.
De omgeving
De Watergraafsmeer is een bijzonder stukje Amsterdam en de afgelopen jaren uitgegroeid tot een van de populairste buurten. Dat begrijpen wij heel goed. Rustig maar centraal, met een gezellige fijne sfeer, fraaie architectuur, betrokken bewoners en toch alle voordelen van een grote stad. Dit zijn enkele van de redenen waarom de Watergraafsmeer is uitgegroeid tot een geliefde wijk waar het aangenaam en comfortabel wonen is. Vele soorten winkels, scholen en sportfaciliteiten liggen in de nabijheid. Er zijn diverse stadsparken in de omgeving, Park Frankendael is zelfs bijna “de achtertuin” van de woning. Leuke cafés en restaurants zijn daarnaast in de omgeving in ruime mate aanwezig.
Bereikbaarheid
Uitstekend bereikbaar met zowel eigen- als openbaar vervoer. De snelwegen Ring
A-10, A-1 en A-2 zijn eenvoudig en snel bereikbaar. Ook het openbaar vervoer in de omgeving is uitstekend. Gelegen in de nabijheid van 3 NS stations, Science Park, Muiderpoort en Amstel, waar verschillende bus-,tram-, trein- en metrolijnen u snel naar uw bestemming brengen. Liever op de fiets? Binnen no time bent u bijvoorbeeld in het Centrum van Amsterdam of staat u op de Amsterdamse Zuidas.
De foto´s geven uiteraard een goed beeld, maar om echt een indruk te krijgen zijn wij van mening dat u het beste kunt komen kijken. Nieuwsgierig of meer informatie? Maak snel een afspraak, wij leiden u met plezier rond en informeren u graag.
In one word: delightful!
What a wonderful home this is full of light, peace, and space, with a warm atmosphere and perfectly situated on one of the most beautiful streets in Watergraafsmeer. What more could you wish for?
Behind the impressive, more than seven-metre-wide façade on this charming and characteristic street lies a spacious and well-maintained double upper house of approximately 155 m², located in the very heart of Watergraafsmeer. The property spans the second and third floors and has its own private entrance on the ground floor. As is often the case in such sought-after locations, owners tend to stay for many years, which means that homes like this rarely come onto the market. Enthusiasts will know that the houses on this side of the Bredeweg enjoy excellent sunlight and offer a surprisingly open view to the rear.
Layout
Entrance to the house via the private street/entrance door on the ground floor and spacious staircase. 2nd floor: Hall, toilet, kitchen, bedroom or study and living/dining room with adjoining terrace. Both here and on the upper floor, you can feel the exceptional width of the house.
Third floor: Two spacious bedrooms, bathroom, toilet, laundry room/storage room and a balcony accessible from one of the bedrooms.
The fourth floor is accessible via a fixed staircase. The deed of division provides for the construction of a roof terrace. However, the current owners have never felt the need for this.
An additional nearby storage space is available as an option.
You may have heard about the discussions surrounding Amsterdam’s leasehold system and the associated ground rent. There is no need for concern here, however this property is situated on freehold land.
Watergraafsmeer is a truly special part of Amsterdam and has, in recent years, become one of the city’s most popular neighbourhoods — and for good reason. It is peaceful yet central, offering a pleasant, friendly atmosphere, beautiful architecture, and a strong sense of community, while still providing all the conveniences of city life. A wide range of shops, schools, and sports facilities can be found nearby. Several parks are within walking distance — Park Frankendael is practically the home’s backyard — and the area boasts a wealth of cafés and restaurants to enjoy.
The location is also excellent in terms of accessibility. The A10, A1, and A2 motorways can be reached quickly and easily, and public transport connections are outstanding. Three railway stations — Science Park, Muiderpoort, and Amstel — are all nearby, offering various bus, tram, train, and metro lines to take you wherever you need to go. Prefer to cycle? Within minutes, you can be in Amsterdam’s city centre or at the Zuidas business district.