Beschrijving

DE WONING WORDT VERKOCHT MET VOORRANG VOOR SOCIALE HUURDERS, INFORMEER NAAR DE VOORWAARDEN.

#YMEREVERKOOPT

Welkom in dit prettig ingedeelde appartement met drie slaapkamers, een gesloten keuken en een heerlijke buitenruimte, gelegen aan de Eerste van Swindenstraat 485 in Amsterdam-Oost. Dankzij de ligging op zowel het oosten als het westen valt er de hele dag door zonlicht de woning binnen.

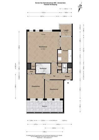
De woning heeft een centrale hal die toegang geeft tot alle vertrekken. Aan de voorzijde ligt de lichte woonkamer met grote raampartijen en toegang tot de loggia, gericht op het oosten. Direct naast de woonkamer bevindt zich een van de drie slaapkamers.

De gesloten keuken is voorzien van een eenvoudig keukenblok. Het is een functionele ruimte die volop mogelijkheden biedt voor een eigen invulling. In het midden van de woning bevindt zich de badkamer met douche en wastafel, met daarnaast een separaat toilet.

Aan de achterzijde liggen nog twee slaapkamers, waarvan er één directe toegang heeft tot het tweede balkon. Dit balkon ligt op het westen en biedt een rustige plek in de middag- en avondzon. Aan deze kant van het gebouw kijk je uit op de gezamenlijke binnentuin: een groene, verzorgde plek die uitsluitend toegankelijk is voor bewoners.

Op de begane grond is een eigen berging aanwezig, ideaal voor het stallen van fietsen of het opbergen van spullen.

De ligging aan de Eerste van Swindenstraat 485 is ideaal: in de directe omgeving vind je een breed aanbod aan winkels, horecagelegenheden, supermarkten en andere voorzieningen. Ook qua bereikbaarheid zit je hier uitstekend. Station Muiderpoort ligt op korte afstand en met de fiets ben je binnen enkele minuten in het centrum. Reis je met de auto? Via de nabijgelegen uitvalswegen ben je zo op de A10, A1 en A2.

Ben je op zoek naar een ruim en licht appartement met drie slaapkamers, een balkon én een loggia, en de mogelijkheid om het helemaal naar eigen smaak te maken? Dan is dit jouw kans. Wij laten je deze woning graag zien. Welkom thuis in Amsterdam-Oost.

Bijzonderheden

- Actieve VvE.
- Servicekosten € 174,14 per maand.
- Energielabel A
- Erfpacht afgekocht t/m 30-04-2041
- Verkoper is een woningbouwvereniging. In de Koopovereenkomst zal onder meer een ouderdomsclausule, een speculatiebeding en verplichting tot zelfbewoning (koper, ouders of kinderen) worden opgenomen. Voorrangregeling voor sociale huurders is van toepassing, informeer naar de voorwaarden.
- Oplevering kan op korte termijn.
- Levering via projectnotaris Lubbers & Dijk

Kenmerken