Beschrijving

DE WONING WORDT VERKOCHT MET VOORRANG VOOR SOCIALE HUURDERS, INFORMEER NAAR DE VOORWAARDEN.

#YMEREVERKOOPT

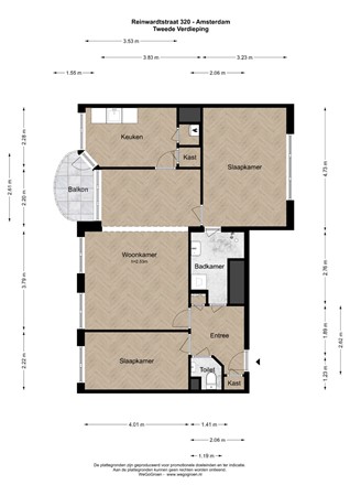
Licht appartement van 71 m² met twee slaapkamers en een balkon.

De woning
Via het gezamenlijke trappenhuis bereikt u de entree van de woning. De centrale hal biedt toegang tot alle vertrekken. Aan de voorzijde ligt de lichte woonkamer met grote raampartijen en uitzicht op de levendige Reinwardtstraat. Aan de achterzijde bevindt zich de dichte keuken, voorzien van een eenvoudig
keukenblok en toegang tot het balkon, gelegen op het noordoosten. De woning beschikt over twee slaapkamers van goede afmetingen. De badkamer is
voorzien van een douche en wastafel. Daarnaast is er een apart toilet en beschikt de woning over twee inpandige bergkasten. 

De woning beschikt nog over een berging op de begane grond.

De omgeving
De Reinwardtstraat ligt in het populaire stadsdeel Amsterdam-Oost, nabij de Javastraat, het Flevopark en de Dappermarkt. In de directe omgeving vindt u een
divers aanbod van winkels, cafés, restaurants en sportvoorzieningen.

Bereikbaarheid
Het appartement is uitstekend bereikbaar met zowel de auto als het openbaar vervoer. De Ring A10, A1 &A2 zijn eenvoudig bereikbaar. Met de tramlijnen 1,3,14
en 19 verbinden u met alle delen van de stad. De metro eveneens dichtbij, waardoor Centraal Station Amsterdam slechts 5 minuten te bereiken is. Daarnaast liggen de NS-stations Amstel, Muiderpoort en Science park ook op korte afstand. Voor fietsers is het centrum binnen 10 minuten bereikbaar, al met al is de bereikbaarheid uitstekend.

Bijzonderheden

Bijzonderheden
- De Vereniging van Eigenaars is ingeschreven bij de kamer van koophandel en is actief.
- De servicekosten bedragen € 177,81 per maand.
- Verwarming en warm water door middel van HR CV combi ketel Intergas (2023).
- Verkoper is een woningbouwvereniging. In de Koopovereenkomst zal onder meer een ouderdomsclausule, een speculatiebeding en verplichting tot zelfbewoning (koper, ouders of kinderen) worden opgenomen.
- De huidige erfpachtcanon is afgekocht t/m 15-06-2034
- Voorrangregeling voor sociale huurders is van toepassing, informeer naar de voorwaarden.
- Oplevering kan snel.
- Vaste projectnotaris (Lubbers en Dijk).

Kenmerken