| Prijs | € 350.000,- k.k. |
| Type object | Appartement, benedenwoning |
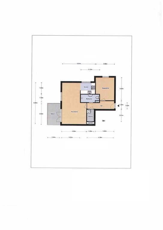
| Woonoppervlakte | 53 m² |
| Aanvaarding | In overleg |
| Status | Nieuw in verkoop |
Aan de rand van het centrum gelegen comfortabel twee kamer appartement van 53 m2, met een fijn balkon op het noord-westen, een eigen parkeerplaats en fietsenstalling. De woning ligt op loopafstand van onder meer diverse winkels en de Westeinderplassen en is onderdeel van het moderne en energiezuinige complex Stevinhof dat in 2013 gebouwd. Indeling Via de gemeenschappelijke entree komt u bij de voordeur. Vanuit de hal zijn de badkamer, slaapkamer, berging en woonkamer met half open keuken bereikbaar. De badkamer is voorzien van een inloopdouche, wastafelmeubel en toilet. Er is verder een inpandige berging met opstelplaats voor de wasmachine en droger. De keuken is in een L opstelling uitgevoerd en voorzien van diverse inbouwapparatuur. Vanuit de lichte woonkamer is via openslaande deuren het balkon bereikbaar. De hele woning is voorzien van vloerverwarming. Er is tot slot een eigen parkeerplaats op een afgesloten terrein en een gezamenlijke fietsenstalling. Nieuwsgierig of meer informatie? Maak snel een afspraak, wij leiden u met plezier rond en informeren u graag.
| Referentienummer | 06647 |
| Vraagprijs | € 350.000,- k.k. |
| Servicekosten | € 158,67 |
| Water | € 10,- |
| Status | Nieuw in verkoop |
| Aanvaarding | In overleg |
| Aangeboden sinds | Woensdag 26 november 2025 |
| Laatste wijziging | Dinsdag 2 december 2025 |
| Type object | Appartement, benedenwoning |
| Woonlaag | 1e woonlaag |
| Soort bouw | Bestaande bouw |
| Bouwperiode | 2013 |
| Dakbedekking | Dakpannen |
| Type dak | Schilddak |
| Isolatievormen | HR-glas Volledig geïsoleerd |
| Woonoppervlakte | 53 m² |
| Inhoud | 143 m³ |
| Oppervlakte gebouwgebonden buitenruimte | 7 m² |
| Balkonoppervlakte | 7 m² |
| Aantal bouwlagen | 1 |
| Aantal kamers | 2 (waarvan 1 slaapkamer) |
| Aantal badkamers | 1 |
| Ligging | Aan rustige weg Aan water In woonwijk |
| Energielabel | A |
| Aantal parkeerplaatsen | 1 |
| Warm water | Elektrische boiler |
| Verwarmingssysteem | Aardwarmte Vloerverwarming |
| Ventilatie methode | Mechanische ventilatie |
| Parkeergelegenheid | Parkeerplaats |
| Heeft een balkon | Ja |
| Heeft een lift | Ja |
| Heeft ventilatie | Ja |
| Ingeschreven bij de KvK | Ja |
| Jaarlijkse vergadering | Ja |
| Periodieke bijdrage | Ja |
| Reservefonds | Ja |
| Meer jaren onderhoudsplan | Ja |
| Opstal verzekering | Ja |
| Kadastrale aanduiding | Aalsmeer D 6816 |
| Omvang | Appartementsrecht of complex |
| Eigendomsituatie | Eigen grond |
| Kadastrale aanduiding | Aalsmeer D 6816 |
| Omvang | Appartementsrecht of complex |
| Eigendomsituatie | Eigen grond |