Beschrijving
DE WONING WORDT VERKOCHT MET VOORRANG VOOR SOCIALE HUURDERS, INFORMEER NAAR DE VOORWAARDEN.
#YMEREVERKOOPT
Ruimte, licht en mogelijkheden: deze eengezinswoning van circa 123 m² biedt alles wat een gezin nodig heeft. Met vier slaapkamers, een achtertuin op het zuidwesten en energielabel A is het een woning die direct uitnodigt om er een persoonlijk thuis van te maken. De erfpacht is afgekocht tot 15 mei 2056, waardoor je nog jarenlang zorgeloos kunt wonen.
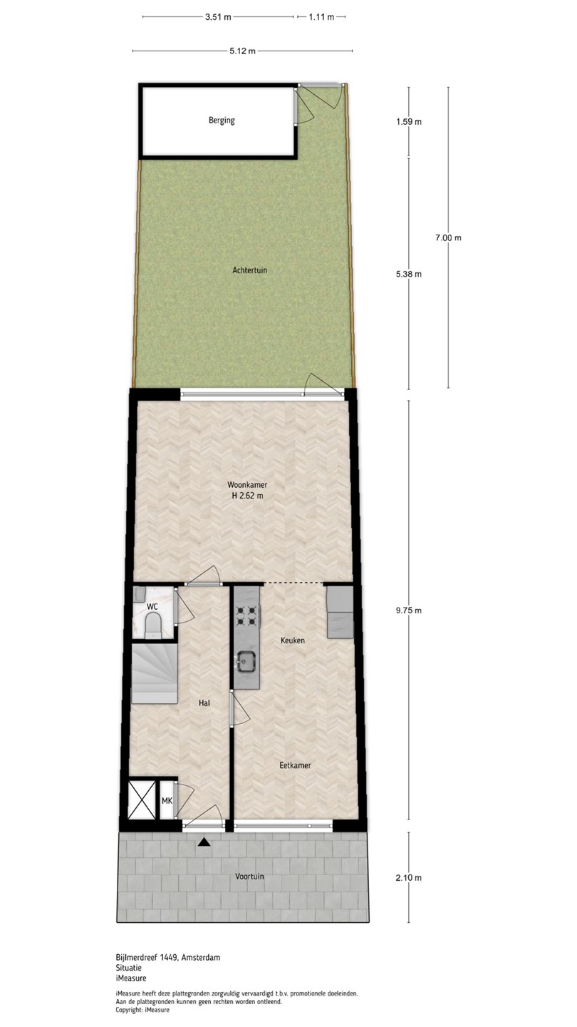
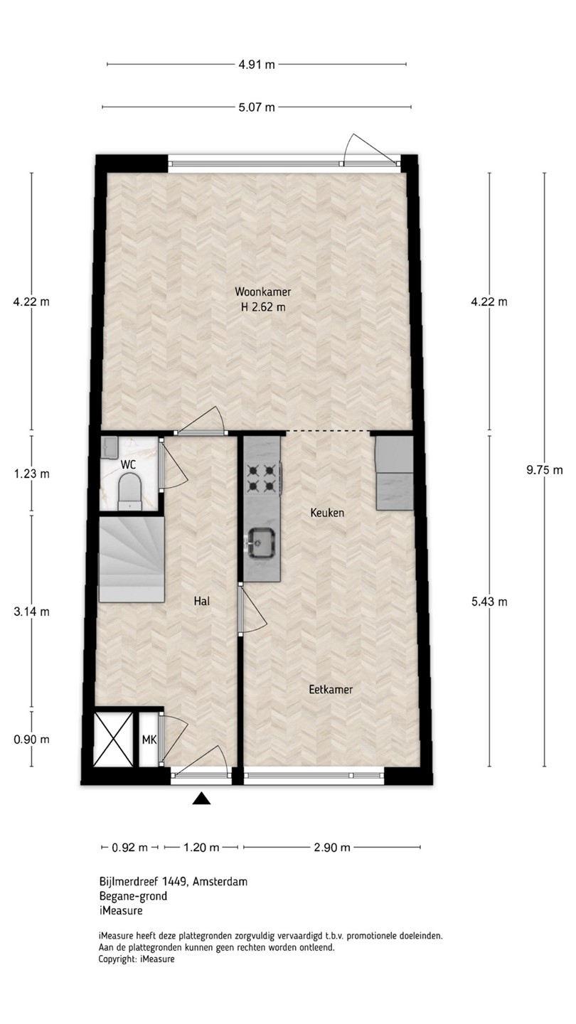
De woning is over meerdere verdiepingen verdeeld en biedt volop flexibiliteit om de indeling naar eigen wens aan te passen. De begane grond heeft een praktische opzet met een eetkamer aan de voorzijde, een centraal gelegen keuken met veel kastruimte en een lichte woonkamer aan de achterzijde, die direct toegang geeft tot de zonnige tuin. Een separaat toilet maakt de begane grond compleet.
Op de eerste verdieping zijn twee slaapkamers en de badkamer met douche en wastafel te vinden, plus een apart toilet op de overloop. De tweede verdieping telt nog twee slaapkamers en een handige wasruimte met de cv-opstelling.
De achtertuin, ongeveer 7 meter diep, ligt gunstig op het zuidwesten en is voorzien van een berging en afgesloten achterom, exclusief voor bewoners. Ook aan de voorzijde is een kleine tuin aanwezig.
De woning ligt in een groene en goed bereikbare buurt van Amsterdam-Zuidoost, dicht bij winkels, scholen, sportvoorzieningen en openbaar vervoer. Met de auto zijn de uitvalswegen naar de A10, A1 en A2 snel bereikbaar.
De woning is gelegen op een gedeeld perceel. Het is belangrijk om te weten dat de koper zelf verantwoordelijk is voor het inmeten van het eigen perceel deel en de kosten hiervan zijn voor koper.
Op zoek naar een ruime woning met veel mogelijkheden, een praktische indeling en een zonnige tuin? Deze woning wacht op een nieuwe eigenaar die er zijn eigen stijl aan kan geven. We nodigen u van harte uit om de woning zelf te komen bekijken, welkom op de Bijlmerdreef!
Bijzonderheden
Wat is goed om te weten;
- Bouwjaar 2007
- Riante tuin van +-35m2
- Energielabel A
- Erfpacht afgekocht tot en met 15-05-2056
- Levering via projectnotaris Actus Notarissen
- Woning is gelegen op een gedeeld perceel, koper is verantwoordelijk voor het inmeten van het perceel en draagt hierbij ook zelf de kosten .
- Verkoper is een woningbouwvereniging. In de Koopovereenkomst zal onder meer een ouderdomsclausule, een speculatiebeding en verplichting tot zelfbewoning (koper, ouders of kinderen) worden opgenomen. Voorrangregeling voor sociale huurders is van toepassing, informeer naar de voorwaarden.
- Oplevering kan op korte termijn