Beschrijving
Het zijn gewoon ideale bovenwoningen. ** English below**
Wat mogen wij u aanbieden? Achter deze charmante en karakteristieke jaren ’30 gevel bevindt zich dit dubbel bovenhuis van circa 89 m² met een ruim dakterras. De woning is verdeeld over de eerste en tweede verdieping, met een eigen entree op de begane grond. Zoals het vaak gaat op mooie plekjes, eigenaren blijven er lang wonen, dat is hier niet anders. De eigenaar heeft er altijd met veel plezier gewoond, maar krijgt nu de kans gelijkvloers te gaan wonen.
Wat bij binnenkomst meteen opvalt is het licht en de sfeer, het voelt meteen als thuis. Naast de gezellige open haard en de erker in de woonkamer is een van de charmes het fraaie dakterras. Een heerlijke plek om te genieten. Nu of in de toekomst meer ruimte nodig? Diverse buren hebben een opbouw gerealiseerd.
Indeling
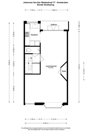
Entree van de woning via de eigen straat/toegangsdeur op de begane grond. 1e verdieping; Hal, toilet, woonkamer met half open keuken en balkon. 2e verdieping; Drie slaapkamers, de badkamer en balkon. 3e verdieping; Via een vaste trap en elektrisch te openen dakluik is het dakterras bereikbaar. Hier is naast een handige berging ook water en stroom aanwezig.
Buitenruimte
Met een balkon op zowel de 1e als 2e verdieping en een heerlijk dakterras van 27 m² op de 3e verdieping zit het met de buitenruimte meer dan goed. De balkons liggen op het noord-westen, met zon in de namiddag en avond. Vanwege de ligging en omliggende bebouwing kunt op het dakterras de hele dag genieten van de zon.
De omgeving
De Watergraafsmeer is een bijzonder stukje Amsterdam en de afgelopen jaren uitgegroeid tot een zeer populaire buurt. Dat begrijpen wij heel goed. Rustig maar centraal, met een fijne sfeer, fraaie architectuur, brede straten met veel groen, betrokken bewoners en toch alle voordelen van een grote stad onder handbereik. Dit zijn enkele van de redenen waarom de Watergraafsmeer is uitgegroeid tot een geliefde wijk waar het aangenaam en comfortabel wonen is. Vele soorten winkels, scholen en sportfaciliteiten liggen in de nabijheid. Er zijn diverse stadsparken zoals Park Frankendael in de omgeving, net als diverse leuke cafés en restaurants.
Bereikbaarheid
Uitstekend bereikbaar met zowel eigen- als openbaar vervoer. De snelwegen Ring A-10, A-1 en A-2 zijn eenvoudig en snel bereikbaar. Ook het openbaar vervoer in de omgeving is uitstekend. In de nabijheid liggen maar liefst drie NS-stations, Science Park, Muiderpoort en Amstel, waar verschillende bus-,tram-, trein- en metrolijnen u snel naar uw bestemming brengen. Liever op de fiets? Binnen no time bent u bijvoorbeeld in het Centrum van Amsterdam of staat u op de Amsterdamse Zuidas.
Op zoek naar een fijne woning op een mooie locatie? Dan nodigen wij u van harte uit om te komen kijken.
**
These are simply ideal upstairs apartments.
What can we offer you? Behind this charming and characteristic 1930s facade is this double upstairs apartment of approximately 89 m² with a spacious roof terrace. The apartment is spread over the first and second floors, with its own entrance on the ground floor. As is often the case in beautiful locations, owners tend to stay there for a long time, and this is no exception. The owner has always enjoyed living there, but now has the opportunity to move to a single-story home.
What immediately strikes you upon entering is the light and atmosphere; it instantly feels like home. In addition to the cozy fireplace and bay window in the living room, one of the charms is the beautiful roof terrace. A wonderful place to enjoy. Need more space now or in the future? Several neighbors have added extensions.
Layout
Entrance to the house via the private street/entrance door on the ground floor. First floor: Hall, toilet, living room with semi-open kitchen and balcony. Second floor: Three bedrooms, bathroom, and balcony. Third floor: The roof terrace is accessible via a fixed staircase and an electrically operated skylight. In addition to a handy storage room, water and electricity are also available here.
Outdoor space
With a balcony on both the 1st and 2nd floors and a lovely 27 m² roof terrace on the 3rd floor, there is more than enough outdoor space. The balconies face northwest, with sun in the afternoon and evening. Due to its location and surrounding buildings, you can enjoy the sun all day long on the roof terrace.
The surroundings
De Watergraafsmeer is a special part of Amsterdam and has become a very popular neighborhood in recent years. We understand why. Quiet but central, with a pleasant atmosphere, beautiful architecture, wide streets with lots of greenery, engaged residents, and yet all the advantages of a big city within easy reach. These are some of the reasons why Watergraafsmeer has become a beloved neighborhood where living is pleasant and comfortable. Many types of shops, schools, and sports facilities are nearby. There are several city parks in the area, such as Park Frankendael, as well as a variety of nice cafés and restaurants.
Accessibility
Excellent accessibility by both private and public transport. The A-10, A-1, and A-2 ring roads are easily and quickly accessible. Public transport in the area is also excellent. There are no fewer than three NS stations nearby, Science Park, Muiderpoort, and Amstel, where various bus, tram, train, and metro lines will take you quickly to your destination. Prefer to cycle? In no time at all, you can be in the center of Amsterdam or the Amsterdam Zuidas business district.
Looking for a nice home in a beautiful location? Then we cordially invite you to come and take a look.
Bijzonderheden
Ondergrond: De woning is gelegen op grond, eigendom van de gemeente Amsterdam. De Algemene (eeuwigdurende) Bepalingen van 2016 zijn van toepassing.
Canon: De canon is gedurende het huidige tijdvak (t/m 15-07-2055) afgekocht. De huidige eigenaar heeft gebruik gemaakt van de gunstige aanbieding van de gemeente en is overgestapt op de nieuwe erfpachtvoorwaarden (AB 2016). Vervolgens is gekozen voor betaling per jaar. De zogenaamde schaduwcanon voor dit jaar is € 1.223,96, maar tot en met 15 juli 2055 hoeft u dus niets te betalen