Beschrijving
Aan de rand van het centrum gelegen comfortabel twee kamer appartement van 53 m2, met een fijn balkon op het noord-westen, een eigen parkeerplaats en fietsenstalling. De woning ligt op loopafstand van onder meer diverse winkels en de Westeinderplassen en is onderdeel van het moderne en energiezuinige complex Stevinhof dat in 2013 gebouwd.
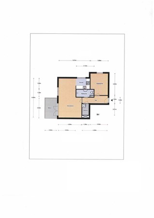
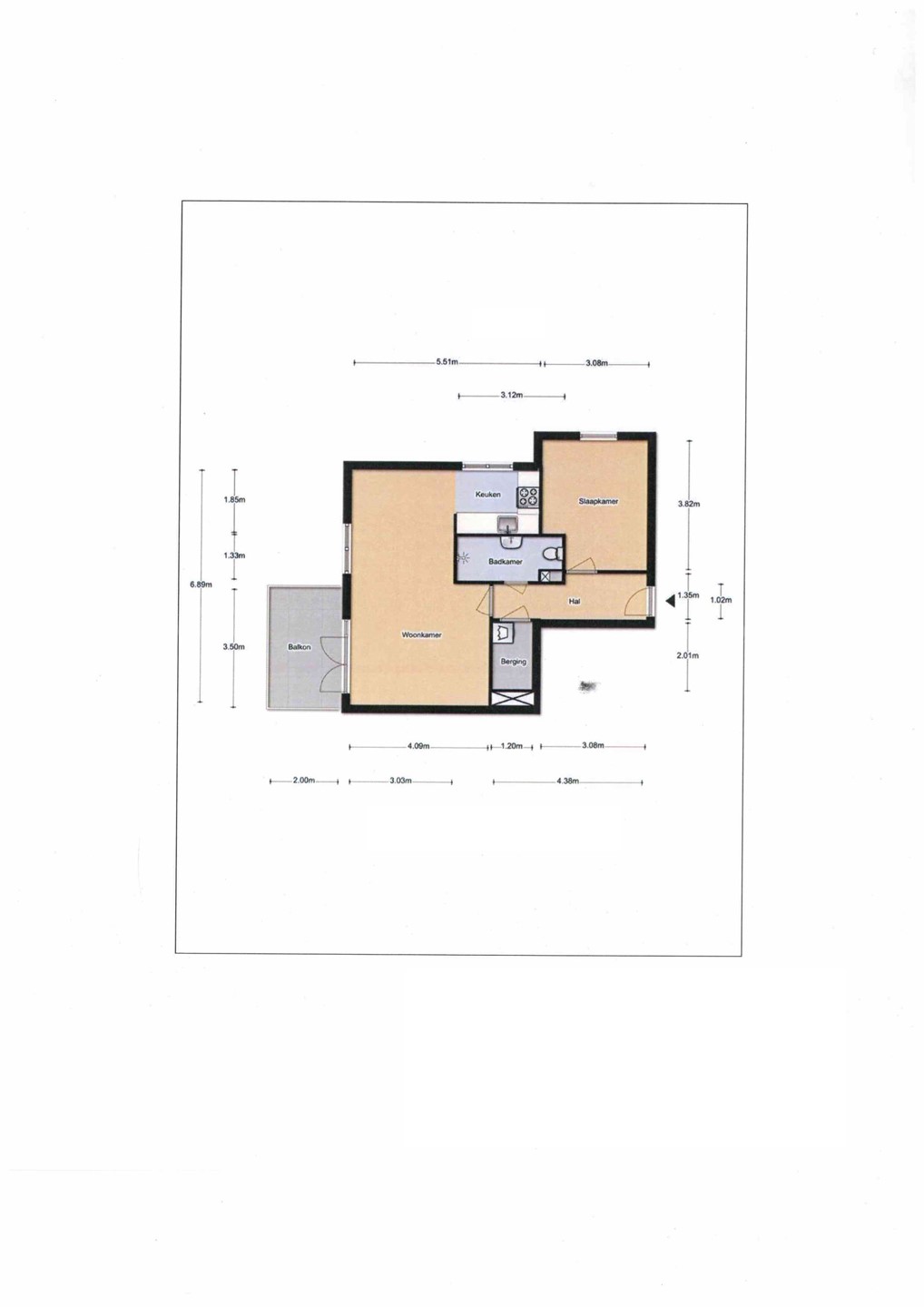
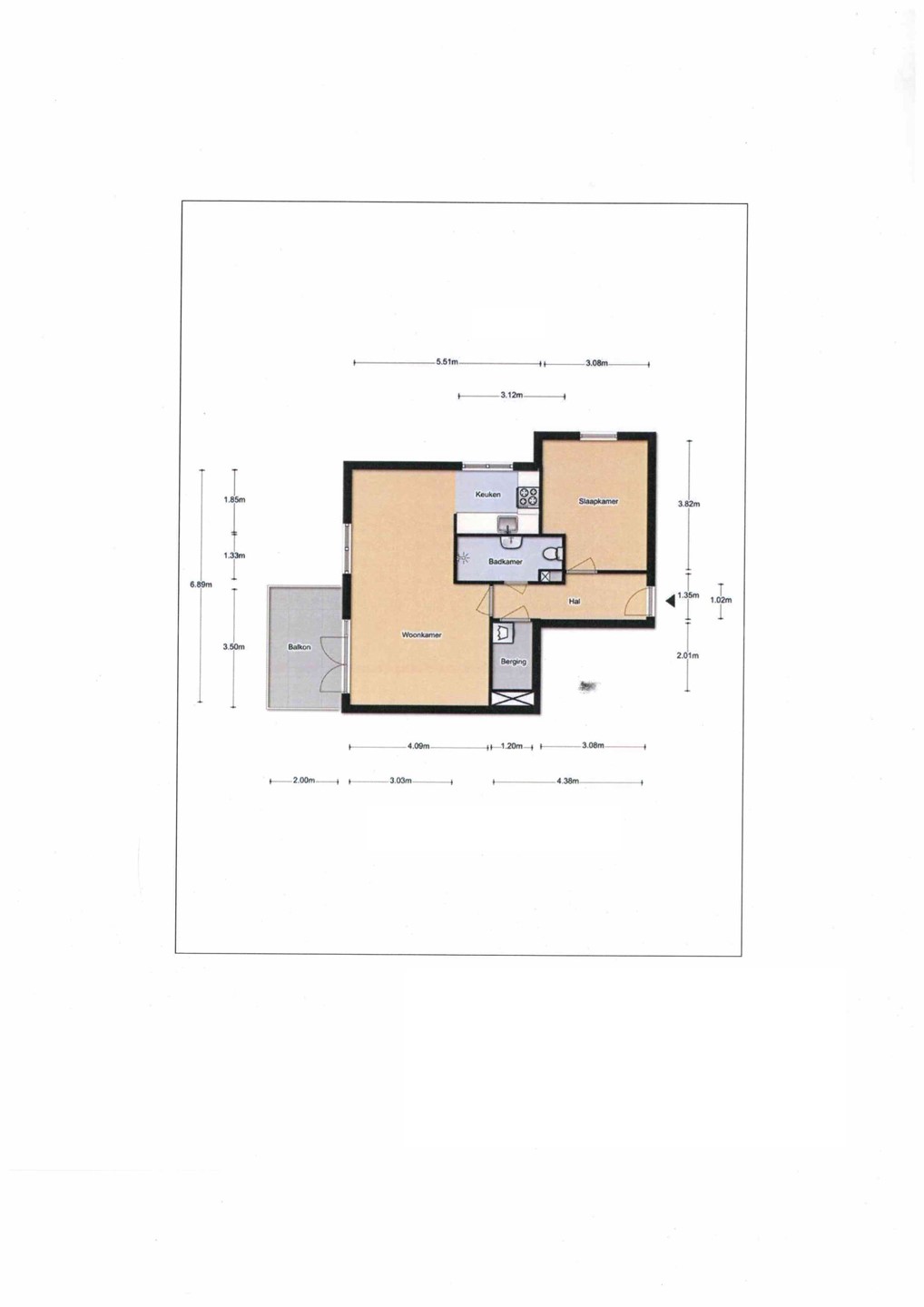
Indeling
Via de gemeenschappelijke entree komt u bij de voordeur. Vanuit de hal zijn de badkamer, slaapkamer, berging en woonkamer met half open keuken bereikbaar. De badkamer is voorzien van een inloopdouche, wastafelmeubel en toilet. Er is verder een inpandige berging met opstelplaats voor de wasmachine en droger. De keuken is in een L opstelling uitgevoerd en voorzien van diverse inbouwapparatuur. Vanuit de lichte woonkamer is via openslaande deuren het balkon bereikbaar. De hele woning is voorzien van vloerverwarming.
Er is tot slot een eigen parkeerplaats op een afgesloten terrein en een gezamenlijke fietsenstalling.
Nieuwsgierig of meer informatie? Maak snel een afspraak, wij leiden u met plezier rond en informeren u graag.